Descripción
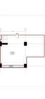
Oficina de 139.22 mts2
2 baños
3 parqueos
Se entrega con piso y artefactos sanitarios
*Entrega aproximada mediados de octubre
Precio: $14.00 mt2 más IVA más mantenimiento (costo del mantenimiento $2.50 más IVA)
ID De Propiedad : DAO10225
Precio: $ 2,573
Metros2 Construcción: 139,22 m2
Estacionamientos: 3
Baños: 2
Mantenimiento: Incluido
Parqueo techado
Balcón
Garita de seguridad
Tour Virtual
Para estrenar
Parqueo de visitas
Ascensor
Contactar
Programa una visita


















